Currently most foreign customers are using Fluid-Quip Disc Mills or Andritz Disc Mill.
At the same time the grinding plate is also original FQ brand or Andritz Brand with very high cost.
But now more and more customers are looking for more competitive price with same quality product Facing fierce competition. Thus HUATAO is best choice for you.
HUATAO Disc Mill Grinding Plate Advantages compared with Fluidquip or Andritz:
1.There is very competitive price with same original brand quality.
2.The Alloy material is tailored based on customized application.
3.We can produce same pattern you have or give more suitable pattern to improve.
4.Only HUATAO can supply this original FQ Grinding plate with warranty 6 month.
5.HUATAO has this FQ grinding plate in stock. Delivery time can be within one week.
HUATAO Disc Mill Grinding Plate for FQ model cases:
Case 1: 36” Grinding plate for Brazil customer who placed order more than 10 sets already.

Technical Requirement:
1.The grinding disc shall not have manufacturing defects such as sand holes, pores, cracks.
2.Manufacturing not specified,angle R2-R4 ° .
3. Tilt the mold above the parting surface at an angle of 1:20 ° .
4. Hardness after processing HRC56-58.
5. The gap between grinding discs is 0.4-0. 5mm.The gap between the entire grinding disc is 2.4-3mm
6. The parallelism tolerance of the grinding surface is within 0.02mm
7. The grinding disc needs to be in pure static balance, with an imbalance not exceeding 0.0005 of its own weight.
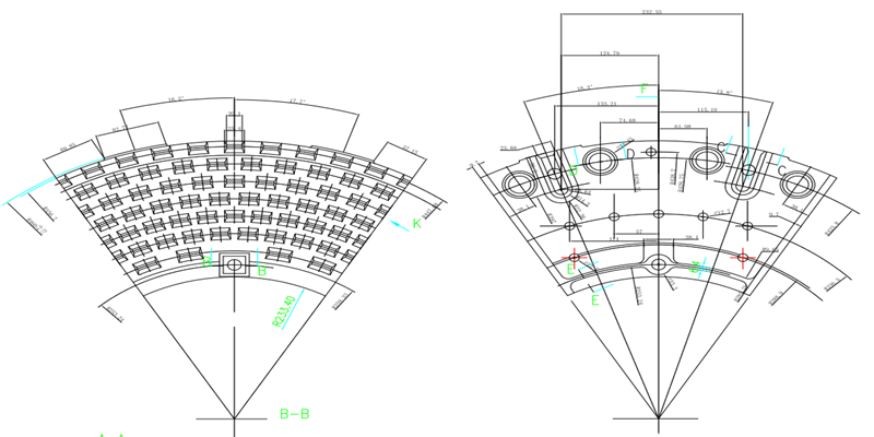
If you are using same model, welcome to contact us for drawing confirmation.
Drawing as following for your reference.


Case 2: 36” Grinding disc for Turkey customer who placed order more than 20 sets.
Specification:
1. Castings are not allowed to have defects such as sand holes, air holes, broken teeth, etc.
2. This grinding disc is suitable for corn crusher, 6pieces per set, two sets per set (one set for dynamic and static types).
3. The dynamic balance of the rotor is calibrated, and the unbalance is not greater than O.0005 of its own weight.



Case 3: 36” and 52” for Andritz Disc Mill from Egypt who ordered 20 sets.


Similar products:
Wood Fiber Defibrator for MDF Production Line
Refiner Disc for Corn Starch Degerminator
Grinding Disc for Fiber Cement Board Deflaker
Wood Chipper Knife for wood industry
Contact me to get a quotation now:
Tel: +86 17736903537(whatsapp & wechat)
Email: janet.wang@huataogroup.com
can not be empty
can not be empty